全电动移动液压小吊机核心优势:
-驱动方式:升降、行走、吊臂调整均为全电力驱动
-旋转灵活性:机身和悬臂可旋转,旋转角度可达270°
-吊臂调节:吊臂设有五个调节工位,长度可调
-安全设置:设有紧急停止按钮和吊钩安全限位装置
-移动性与电池:配备耐磨脚轮,采用高品质泵站与免维护电池

全电动移动液压小吊机应用领域:
*汽车制造与维修:用于吊装发动机、变速箱等大型部件
*机械加工与设备检修:为机床上下料、更换模具提供便利
*电力工程与车间管理:协助完成变压器等设备的安装与维护
*物流装卸与电池车间:在生产线或仓库中高效搬运重型物品

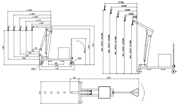
全电动移动液压小吊机尺寸图:

全电动移动液压小吊机参数:
吊机起升方式 | 电动 |
每档对应吊臂长度(mm) | 930 | 1210 | 1500 | 1800 | 2080 |
每档对应载荷(kg) | 650 | 435 | 330 | 225 | 173 |
每档对应吊钩离地高度MAX(mm) | 1915 | 2060 | 2210 | 2365 | 2503 |
每档吊钩高时对于的吊钩到前端距离(mm) | 80 | 325 | 565 | 825 | 1075 |
吊臂水平状态吊钩离地高度(mm) | 1480 | 1480 | 1480 | 1480 | 1480 |
吊臂水平状态吊钩到前端距离(mm) | 337 | 625 | 920 | 1220 | 1500 |
电池(V/Ah) | 12/80*2 |
充电器(V/A) | 24/15 |
车身尺寸:长宽高(mm) | 1740*910*1630 |
脚轮直径PU(mm) | Ø180 |
产品净重(kg) | 468 |
泵站参数 | 24V/2.5kw |
驱动轮参数 | 1.2kw |
驱动轮轮面尺寸(mm) | 250*80 |
提示:全电动移动液压小吊机产品不断升级,当外形与参数变更时,均以实物为准,恕不另行通知。

全电动移动液压小吊机属于烟台开发区龙海起重工具有限公司旗下品牌产品,保质1年(易损件除外),在产品保质周期内正常使用的情况下出现的质量问题,我公司可提供免费维修、免费更换配件、如因质量问题维修或更换配件仍然不能达到正常使用,可免费更换主机(产品附件以及易损件除外)由此产生的运输,维修费用由改装,则视为自动放弃质保服务!