
LLH-FER10电动液压小吊机核心优势:
1. 智能电动液压驱动
电力驱动:配备免维护工业电池,续航持久,无频繁充电烦恼,使用寿命长。
电动变幅:通过液压缸精准控制吊臂升降,液压上升扬杆,液压下降落杆,操作平稳省力。
电动伸臂:液压驱动吊臂伸缩,自由调节作业范围,适应不同高度与距离的吊装需求。
2. 灵活多角度作业
吊臂倾斜可调:支持0°(水平)至40°倾斜载重,并自动保持平衡,满足多样化吊装角度需求。
6工位可调:提供多档位调节,精准适配不同载重工况,提升作业效率。
3. 便携移动 & 节省空间
可折叠设计:机体可快速折叠,收纳后占地面积小,便于存放与运输。
耐磨脚轮:采用高强度脚轮,移动灵活,对地面压力小,适合室内外多种场地。
4. 安全可靠
过载保护:关键部件经过强化设计,确保重载作业稳定性。
液压防泄压:系统具备自锁功能,防止突发压力下降,保障安全。

LLH-FER10电动液压小吊机适用场景:
✔ 工厂设备安装与维护
✔ 仓储物流货物装卸
✔ 建筑工地材料吊运
✔ 车间生产线重物移位
✔ 狭窄空间高空作业

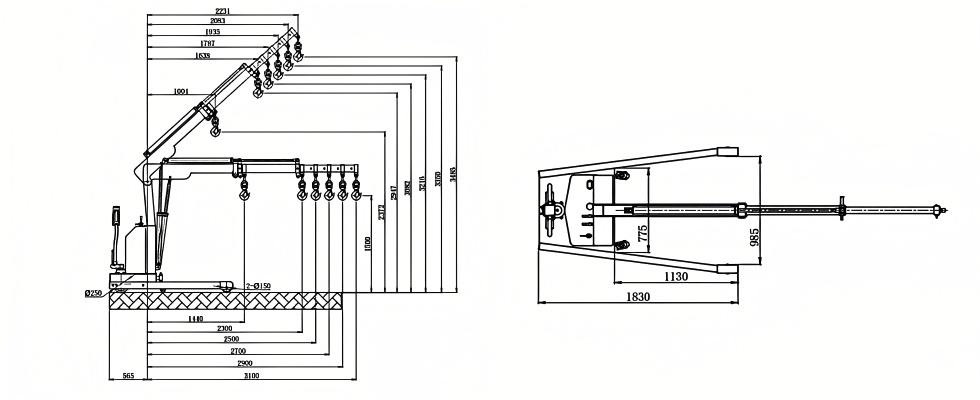
LLH-FER10电动液压小吊机尺寸图:

LLH-FER10电动液压小吊机技术参数:
| 型号 | LLH-FER10 | 单位 | A | B | C | D | E | F |
| 0度 | 吊臂长度 | mm | 1440 | 2300 | 2500 | 2700 | 2900 | 3100 |
| 额定载重 | kg | 1000 | 342 | 290 | 250 | 220 | 200 |
| 40度 | 吊臂长度 | mm | 1004 | 1638 | 1787 | 1935 | 2083 | 2231 |
| 额定载重 | kg | 1100 | 565 | 430 | 345 | 290 | 250 |
| 支腿内宽 | mm | 985 |
| 支腿外宽 | mm | 1170 |
| 净重 | kg | 568 |
注意:由于LLH-FER10电动液压小吊机产品不断改良,当外形与参数变更时,均以实物为主,恕不另行通知。

LLH-FER10电动液压小吊机
属于烟台开发区龙海起重工具有限公司旗下品牌产品,保质12个月(易损件除外),在产品保质周期内正常使用的情况下出现的质量问题,我公司可提供免费维修、免费更换配件、如因质量问题维修或更换配件仍然不能达到正常使用,可免费更换主机(产品附件以及易损件除外)由此产生的运输,维修费用由我公司承担。非质量问题我公司将收费处理,所产生的运输、维修等费用由客户承担,若客户私自改装,则视为自动放弃质保服务!
注意:不论产品出现上述那种问题,客户需要提供清楚的故障视频以及产品故障图片,并说明使用方式。