
半电动液压小吊机产品优势:
1.重载耐用,稳定可靠
半电动液压小吊机采用重载型结构设计,搭配双作用液压油缸,提升承载能力,确保起重过程平稳高效。
2.无前支腿设计,作业范围更广
省去传统前支腿,减少空间限制,适应狭窄或复杂工况,提高设备适用性。
3.高效动力系统,持久续航
配备高性能液压泵站和免维护电池,动力强劲,减少停机半电动液压小吊机充电时间,提升工作效率。
4.五档可调悬臂,灵活适应不同需求
提供5个手动调节悬臂位置,半电动液压小吊机可根据作业高度自由调整,满足多样化起重需求。
5.安全吊装,操作便捷
采用锻造重载旋转吊钩,搭配弹性锁扣,防止货物滑脱,确保吊运安全。
6.维护简便,经济实用
结构优化,关键部件耐用,降低故障率,减少维护成本,长期使用更经济。
半电动液压小吊机集高效、安全、灵活、耐用于一体,是工厂、仓库、物流等场所的理想搬运解决方案!

半电动液压小吊车适用于:
工厂车间设备安装/维修
仓储物流货物装卸
建筑施工材料吊运
户外应急起重作业

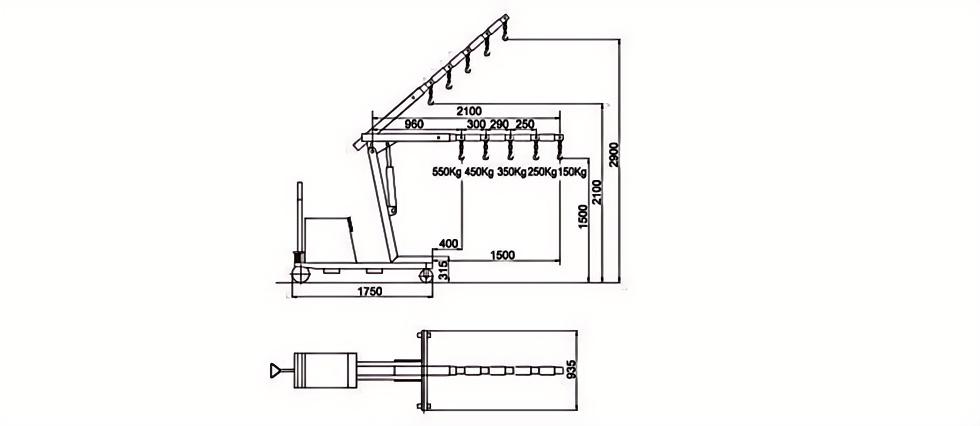
半电动液压小吊机尺寸图:

半电动液压小吊机技术参数:
型号 | LLH-E05-A |
吊臂长度 | mm | 960 | 1260 | 1550 | 1800 | 2100 |
工位最大载荷 | kg | 550 | 450 | 350 | 250 | 150 |
吊臂最高时吊钩离地高度 | mm | 2100 | 2300 | 2500 | 2700 | 2900 |
吊臂水平时吊钩离地高度 | mm | 1500 |
吊臂最低时吊钩离地高度 | mm | 450 | 着地 | 着地 | 着地 | 着地 |
吊臂最高时吊钩到前端的水平距离 | mm | -150 | 0 | 100 | 350 | 400 |
吊臂水平时吊钩到前端的水平距离 | mm | 400 | 700 | 990 | 1240 | 1500 |
吊臂最低时吊钩到前端的水平距离 | mm | -100 | 50 | 300 | 750 | 1100 |
车身尺寸:长x宽x高(吊臂最低时) | mm | 1750x930x1800 |
脚轮尺寸 | mm | 材质(尼龙)后轮直径200,前轮直径150 |
起升速度(空载/满载) | mm/s | 130/70 |
电池参数 | Ah/V | 120/12 |
内置充电机 | A/V | 输入220V/50Hz,输出8A/12V |
净重 | kg | 450 |
注:由于半电动液压小吊机不断升级,产品参数不另行通知,以实物为准。

半电动液压小吊机属于烟台开发区龙海起重工具有限公司旗下品牌产品,产品保质周期为12个月(易损件除外),在产品保质周期内正常使用的情况下出现的质量问题,我公司可提供免费维修、免费更换配件、如因质量问题维修或更换配件仍然不能达到正常使用,可免费更换主机(产品附件以及易损件除外)由此产生的运输,维修费用由我公司承担。非质量问题我公司将收费处理,所产生的运输、维修等费用由客户承担。
注意:不论产品出现上述那种问题,客户需要提供清楚的故障视频以及产品故障图片,并说明使用方式。