
全电动旋转液压小吊机核心优势:
1.高效全能
采用全电力驱动,实现升降、行走、吊臂调节一键操控;机身可270°旋转,搭配五档可调伸缩吊臂,精准覆盖多角度吊装任务,适应复杂工作环境。
2.安全可靠
平衡重设计确保起升平稳,高品质液压泵站与免维护电池减少故障率。
紧急停止按钮+吊钩安全卡扣双重防护,仪表盘实时显示电量,操作更安心。
3.经济耐用
电动驱动节能环保,低维护设计显著降低长期使用成本,是替代传统人力或燃油设备的理想选择。


全电动旋转液压小吊机广泛应用于汽车生产线装配、电力设备维护、机床零部件搬运、车间检修等高精度、高强度吊装作业场景。

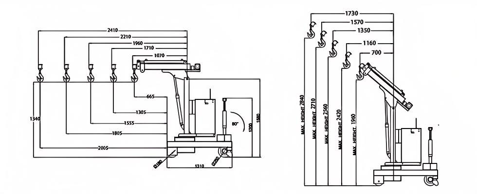
全电动旋转液压小吊机尺寸图:

全电动旋转液压小吊机技术参数:
| 型号 | LLH-R045-C |
| 驱动模式 | 电动液压 |
| 承载量kg | 450 | 210 | 185 | 145 | 120 |
| 吊钩离地起升高度Max(mm) | 1960 | 2420 | 2560 | 2710 | 2840 |
| 吊钩至前基座的水平长度Max(mm) | 700 | 1160 | 1350 | 1570 | 1730 |
| 吊钩离地水平提升高度(mm) | 1340 | 1340 | 1340 | 1340 | 1340 |
| 从挂钩到前基座的水平长度(mm) | 665 | 1305 | 1555 | 1805 | 2005 |
| 轮径(mm) | Φ180/Φ250 |
| 净重(kg) | 1204 |
| 泵功率(kw/V) | 2.2/24 |
| 电池(V/Ah) | 12/85 |
| 充电器(V/A) | 24/15 |
| 充电时间(h) | 10 |
| 驱动轮功率(kw) | 0.7 |
温馨提示:由于全电动旋转液压小吊机尺寸产品不断升级,产品参数变动恕不另行通知,以实物为准。

全电动旋转液压小吊车属于烟台开发区龙海起重工具有限公司旗下品牌产品,产品保质周期为12个月(易损件除外),在产品保质周期内正常使用的情况下出现的质量问题,我公司可提供免费维修、免费更换配件、如因质量问题维修或更换配件仍然不能达到正常使用,可免费更换主机(产品附件以及易损件除外)由此产生的运输,维修费用由我公司承担。非质量问题我公司将收费处理,所产生的运输、维修等费用由客户承担。
注意:不论产品出现上述那种问题,客户需要提供清楚的故障视频以及产品故障图片,并说明使用方式。