
全电动液压小吊机产品三大优势:
1.强劲动力,持久续航
全电动液压小吊机配备高性能锂电池,满电状态下可连续工作6小时,满足高强度作业需求。支持快充技术,仅需6-8小时即可充满,高效省时,确保设备快速投入下一轮工作。
2.超强载荷,安全稳定
全电动液压小吊机采用优质液压系统,最大起重量达1.6吨,轻松应对重型物料吊装任务。坚固钢结构机身,搭配智能平衡控制,运行平稳精准,保障作业安全可靠,适用于建筑、物流、工厂等多种场景。
3.智能操控,灵活高效
电动液压一体化设计,操作简单便捷,移动轻便灵活,大幅提升搬运效率。无论是设备安装、货物装卸,还是高空作业,龙升全电动液压小吊机都是您的得力助手!

1.建筑施工
钢结构吊装、预制件安装
建材搬运(钢筋、模板、管道等)
室内外高空作业辅助
2.仓储物流
重型货物装卸(机械设备、集装箱货物)
仓库高位货架存取
生产线物料周转
3.工厂车间
设备安装与维护(机床、模具等)
生产线重型部件吊运
流水线工位定点升降
4.市政工程
管道铺设、桥梁检修
电力设施安装(变压器、电缆盘)
应急抢险中的快速吊装
5.制造业与维修
汽车/船舶行业大型部件组装
机械维修中的引擎、变速箱吊装
车间内灵活移载作业

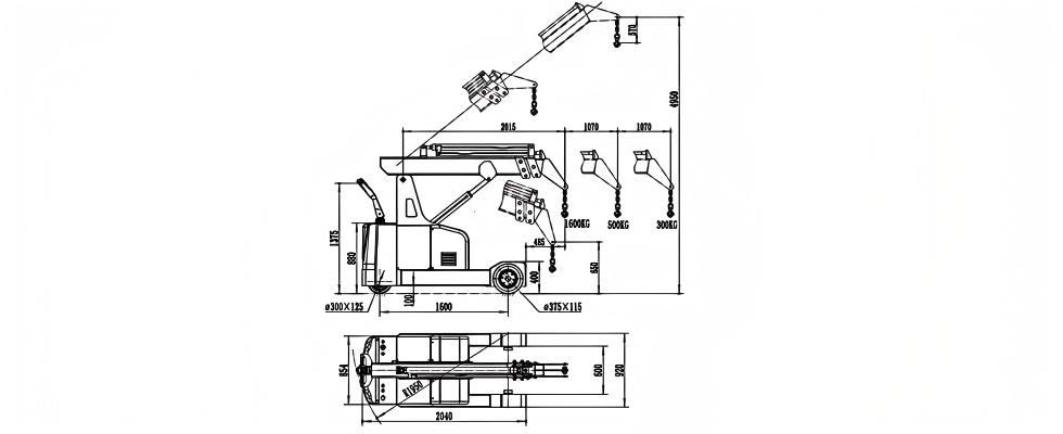
全电动液压小吊机尺寸图:

全电动液压小吊机技术参数:
参数 | 数值 |
最大承载量(吊臂完全收回时) | 1600kg |
最大承载量(吊臂完全伸出时) | 300kg |
驱动电机 | AC16VA1.5kW |
升降电机 | DC24V/2kW |
蓄电池 | 12×2V/280Ah |
蓄电池充电器 | 24V/40A |
注:因全电动液压小吊机产品不断升级,如有参数变动,恕不另行通知,以实物为准。

全电动液压小吊机
属于烟台开发区龙海起重工具有限公司旗下品牌产品,保质12个月(易损件除外),在产品保质周期内正常使用的情况下出现的质量问题,我公司可提供免费维修、免费更换配件、如因质量问题维修或更换配件仍然不能达到正常使用,可免费更换主机(产品附件以及易损件除外)由此产生的运输,维修费用由我公司承担。非质量问题我公司将收费处理,所产生的运输、维修等费用由客户承担,若客户私自改装,则视为自动放弃质保服务!
注意:不论产品出现上述那种问题,客户需要提供清楚的故障视频以及产品故障图片,并说明使用方式。