


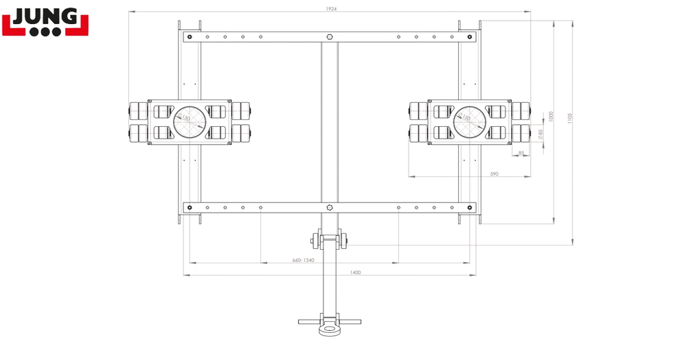
德国JUNG集装箱搬运小坦克装箱安全搬运用,集装箱安全运输;可分为焊接锥式及扭锁式,可按需选择且后车可按需调节宽度;确保集装箱在较低高度安全移动;
焊接锥式:焊接锥体在原转盘上改进,增加了集装箱适配器,不带自锁,配适用于标准装箱的加长连接杆(2.26米),串联小车配2个带拉环牵引杆;
扭锁式:自锁装置在原转盘上改进,增加了自锁功能,配适用于标准集装箱的加长连接杆(2.26米,长度不可调)。


焊接椎体式型号 | JTLB 14 K | JFB 14 K |
高度h1 | 110mm | 110mm |
高度h2 | 170mm | 170mm |
ISO长度 | 2260mm | 2260mm |
总长度/宽度 | 1070×2850 |
|
自锁式型号 | JTL 20 G | JTLB 30 G | JFB 20 G | JFB 30 G |
高度h1 | 215mm | 215mm | 215mm | 215mm |
高度h2 | 300mm | 300mm | 300mm | 300mm |
ISO长度 | 2260mm | 2260mm | 2260mm | 2260mm |
总长度/宽度 | 1260×2700mm | 1620×3000mm |
|
|
提示:德国JUNG集装箱搬运小坦克产品不断升级,当外形与参数变更时均以实物为准,恕不另行通知。

德国JUNG集装箱搬运小坦克案例图

德国JUNG 集装箱搬运小坦克为德国原装进口产品,质保5年,我公司承诺凡是客户在我公司订购的进口类产品均为原装正品,绝不存在拆件货、换件货、假冒品牌产品。凡客户从我公司订购德国JUNG产品如收到货物时发现有拆件货、换件货、假冒、假货仿货均以100倍金额赔偿。